Hohler Weg 2   32760 Detmold    Tel 0160 8355579  

  Projekte - aktuelle Projekte

Neubauten •       Baudenkmäler •       Gebäudesanierung und Erweiterung •      Aktuelle Projekte •



  Home •

Leistungen •

Projekte •

Kontakt •
 
 

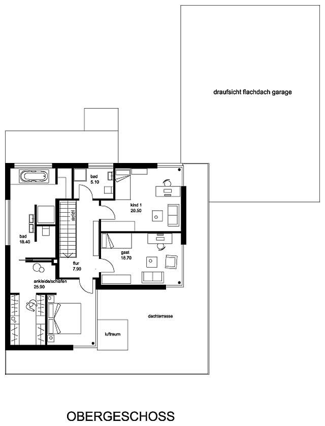
Neubau eines Einfamilienhauses in Detmold


Neubau eines Einfamilienhauses in Detmold



Neubau eines Einfamilienhauses in Detmold



Neubau eines Einfamilienhauses in Detmold



Neubau eines Einfamilienhauses in Detmold


Neubau eines Einfamilienhauses in Detmold


Neubau eines Einfamilienhauses in Detmold



zurück nach oben     zurück zu aktuelle Projekte