Hohler Weg 2   32760 Detmold    Tel 0160 8355579  

  Projekte - aktuelle Projekte

Neubauten •       Baudenkmäler •       Gebäudesanierung und Erweiterung •      Aktuelle Projekte •



  Home •

Leistungen •

Projekte •

Kontakt •
 
 

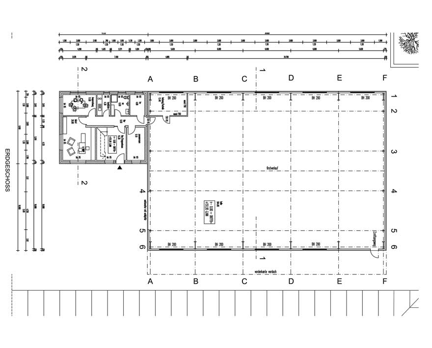
Neubau einer Lagerhalle mit Bürotrakt und Betriebswohnung in Blomberg

Neubau einer Lagerhalle mit Bürotrakt und Betriebswohnung in Blomberg

Neubau einer Lagerhalle mit Bürotrakt und Betriebswohnung in Blomberg


Neubau einer Lagerhalle mit Bürotrakt und Betriebswohnung in Blomberg


Neubau einer Lagerhalle mit Bürotrakt und Betriebswohnung in Blomberg


Neubau einer Lagerhalle mit Bürotrakt und Betriebswohnung in Blomberg



zurück nach oben     zurück zu aktuelle Projekte